220505 Esnal Mercer 001-3.jpg

Mercer Street Duplex

 

Mercer Street Duplex

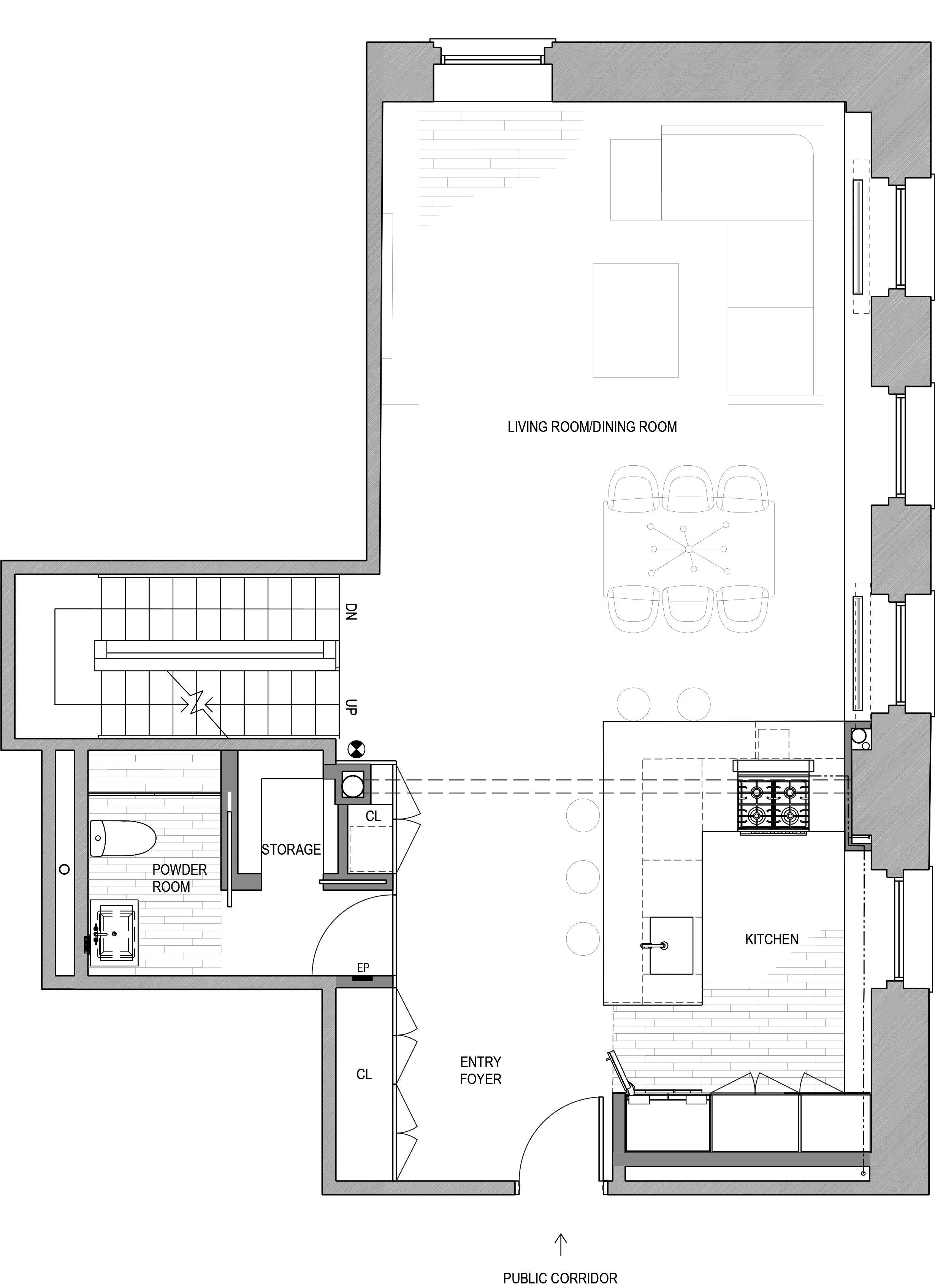
303 Mercer street was a unique transformation of a duplex apartment in the heart of Soho that has not been touched in almost 50 years. We wanted to created a continuous scheme between the two floors where materials and elements repeated themselves to create a relaxing undisturbed environment for a deserving family of four. 

 
 

Project in collaboration with studio esnal

Photo credit: ImagenSubliminal Miguel de Guzman+ Rocio Romero